RADBAUSTRUKT SM
Ihr Büro für Schal- und Bewehrungsplanung
Büro und Aktivität
Erfahrung und Professionalismus

Mit abgeschlossenem Studium in Bautechnik möchte ich Ihre Aufmerksamkeit auf meine über 15-jährige Erfahrung in der Erstellung von Bewehrungs- und Schalungsplänen lenken.

Ich habe kluge und ehrgeizige junge Leute neben mir entwickelt, die ich nach und nach in alle Geheimnisse der Schalungs- und Bewehrungsplanung eingewiesen habe, sodass wir nun in der Lage sind, die schnellsten und präzisesten Pläne zu liefern.

Wir haben mit verschiedenen Planungsbüros zusammengearbeitet, sowohl größeren als auch kleineren, die uns zur Umsetzung einer breiten Palette von Bauprojekten geführt haben, sodass wir Ihnen jetzt Sicherheit bei der Realisierung Ihrer Projekte bieten können

Ich kann Ihnen jederzeit Telefonnummern unserer Arbeitgeber zur Verfügung stellen, die unsere Erfahrung und Arbeitsqualität bestätigen können.

Glauben Sie uns nicht aufs Wort, testen Sie uns

Wir bewehren alles
Leistungen
Qualität und Diversität

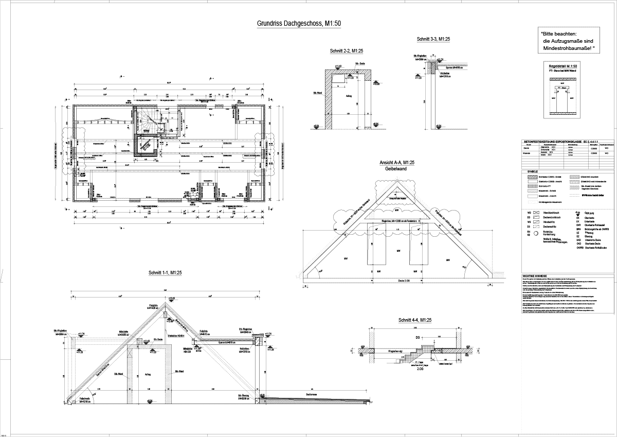
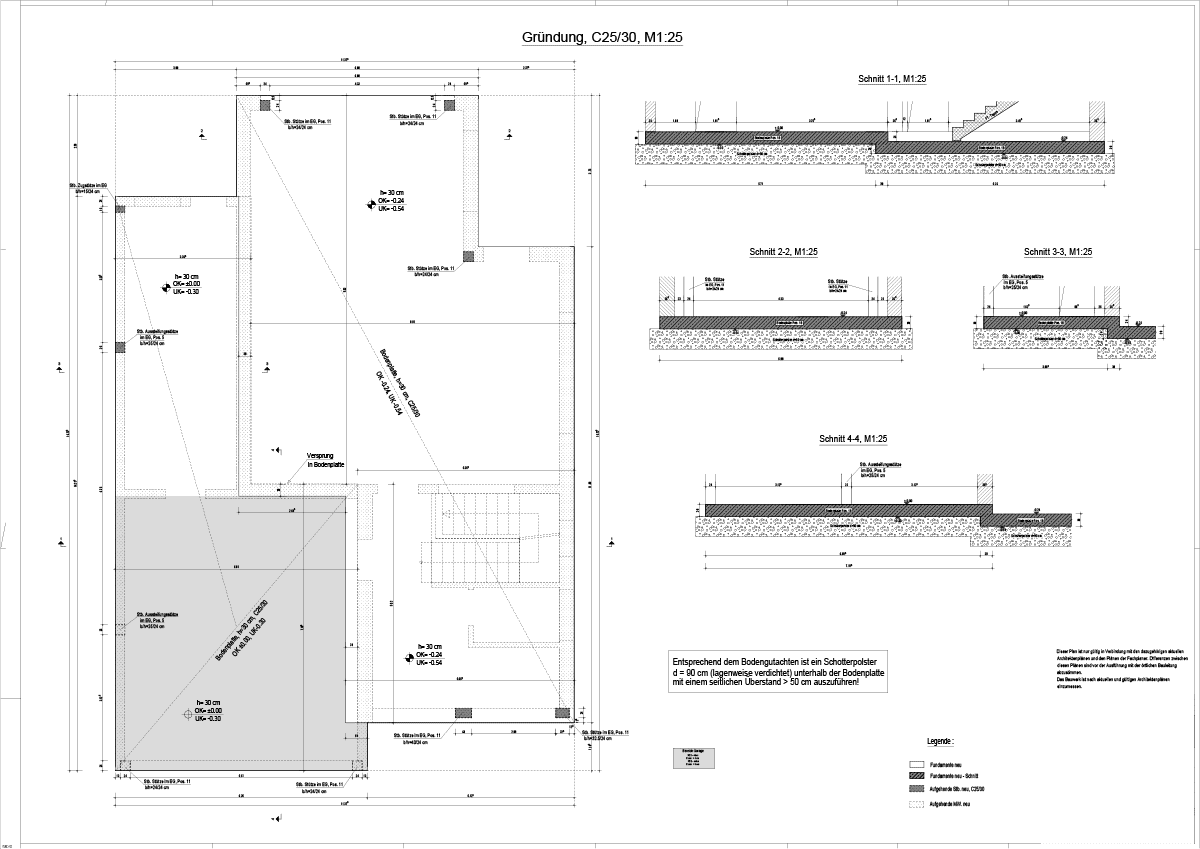
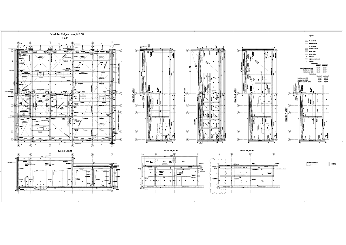
Das Leistungsangebot erstreckt sich über die Erstellung von Schalplänen, Bewehrungsplänen und
Fertigteil-Werkstatt Zeichnungen. Natürlich werden auch Teilleistungen ausgeführt.

Die Vorgaben der Kunden, Auftraggeber und Planer werden fachgerecht umgesetzt. Hierbei sieht das Ingenieurbüro
einen optimalen Mix zwischen Wirtschaftlichkeit und Praktikabilität als eine zentrale Aufgabenstellung an.

Zur Erstellung der Konstruktionspläne arbeiten wir immer mit den neuesten Versionen des Programms Isb-cad der Firma Glaser.
Konvertierung in DWG, DXF, PLT, und PDF sind möglich.
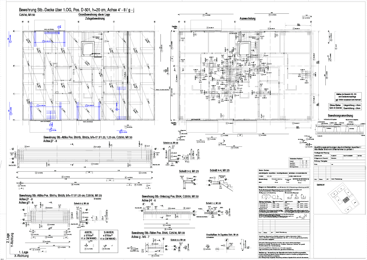
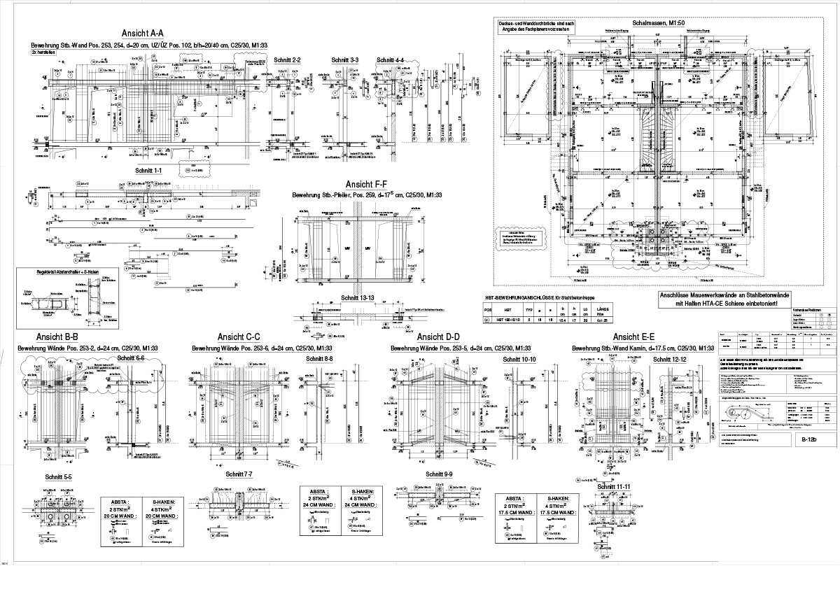
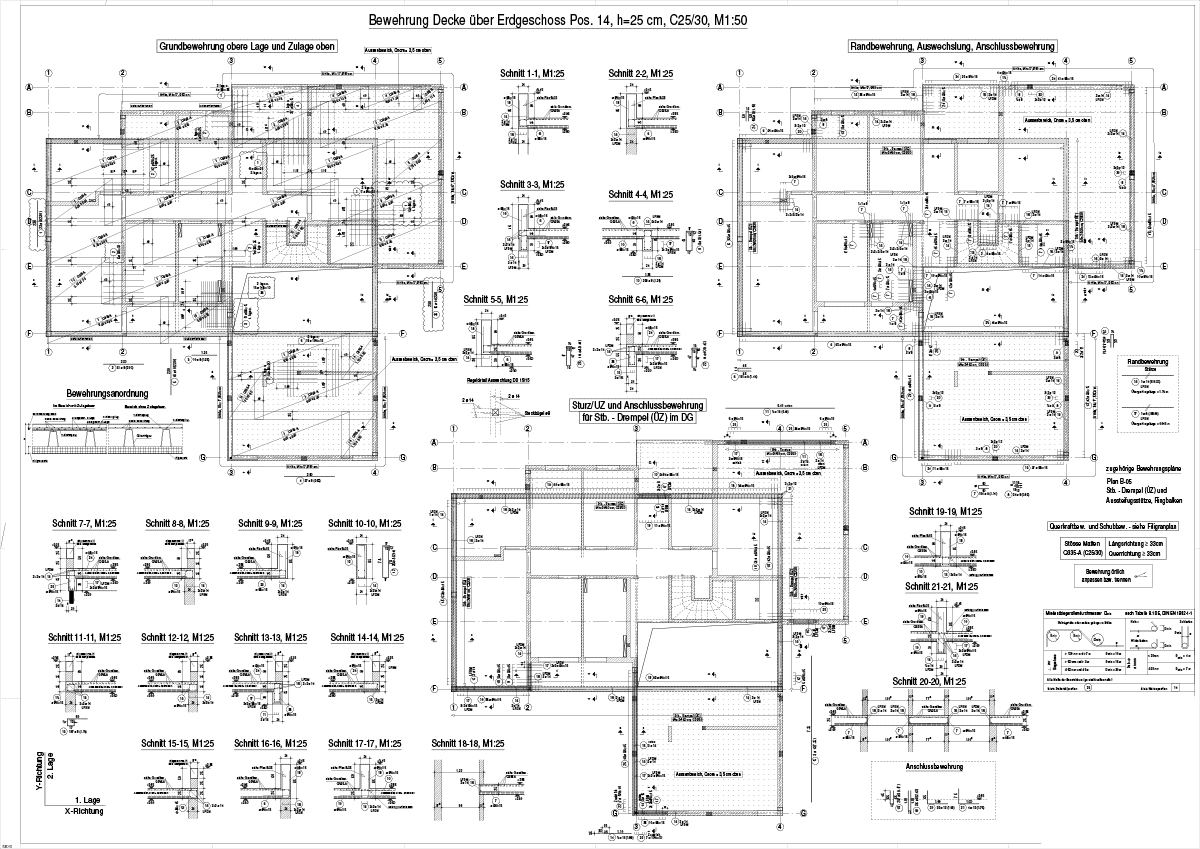
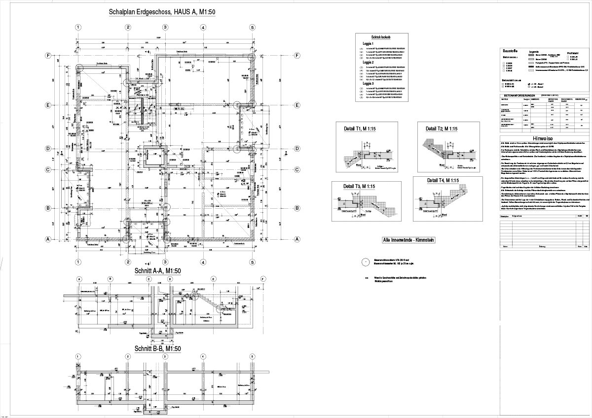
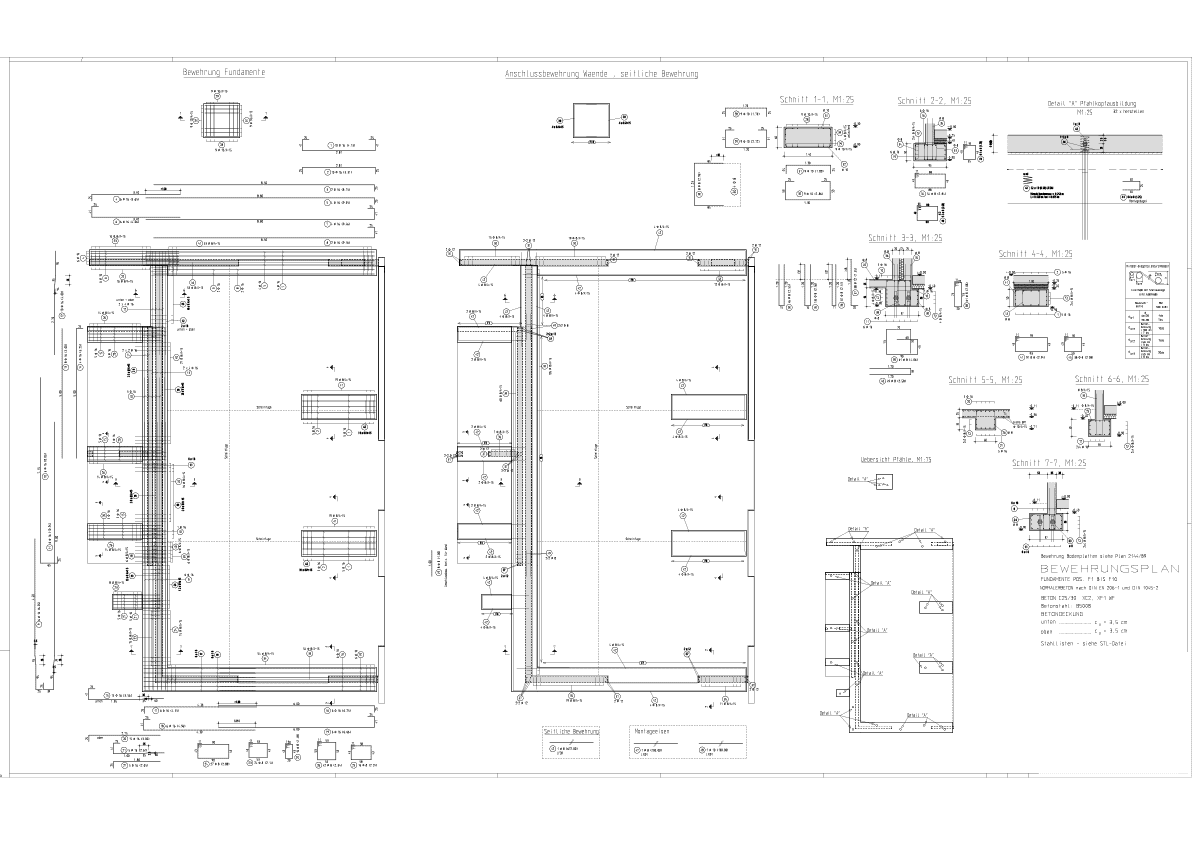
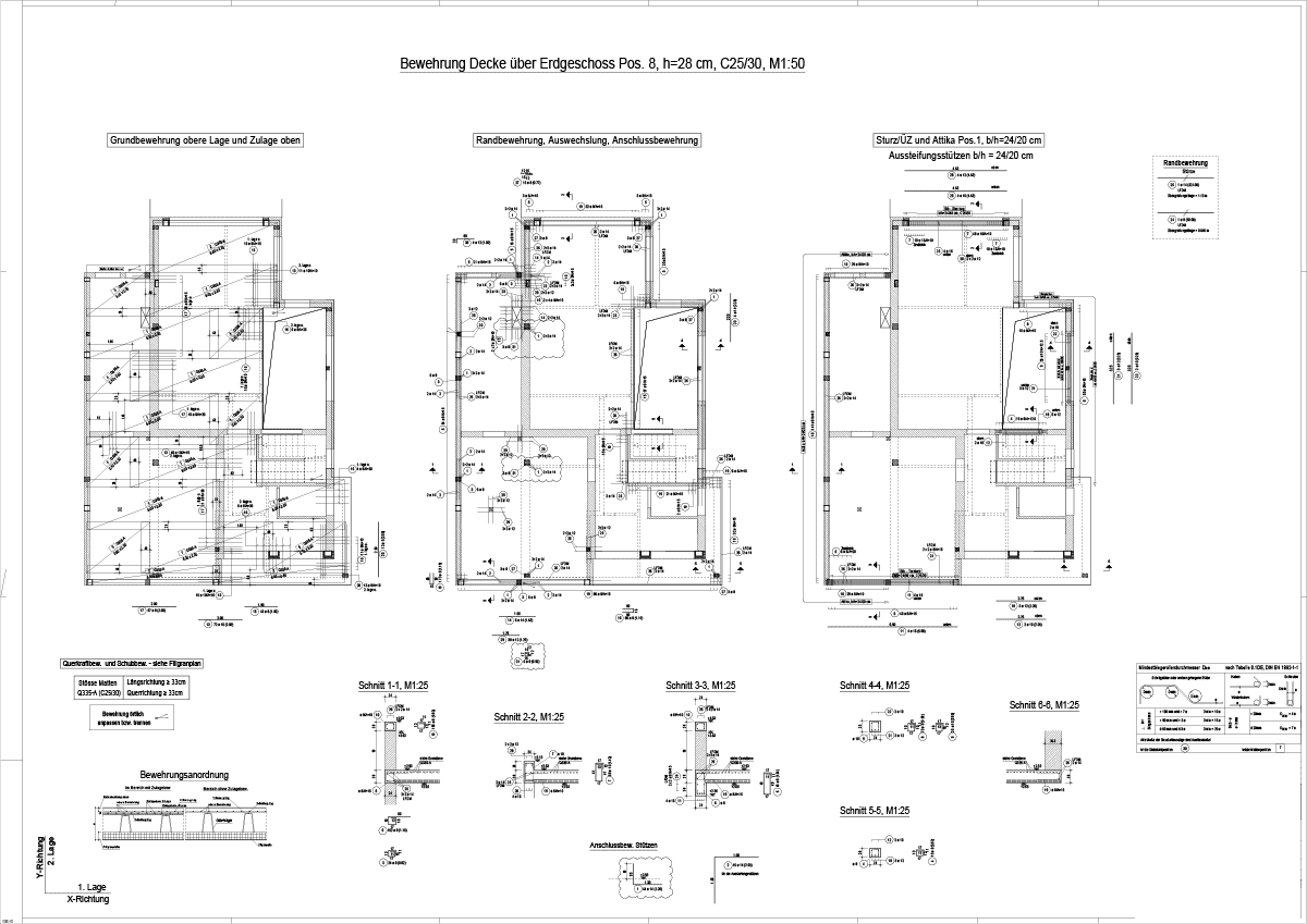
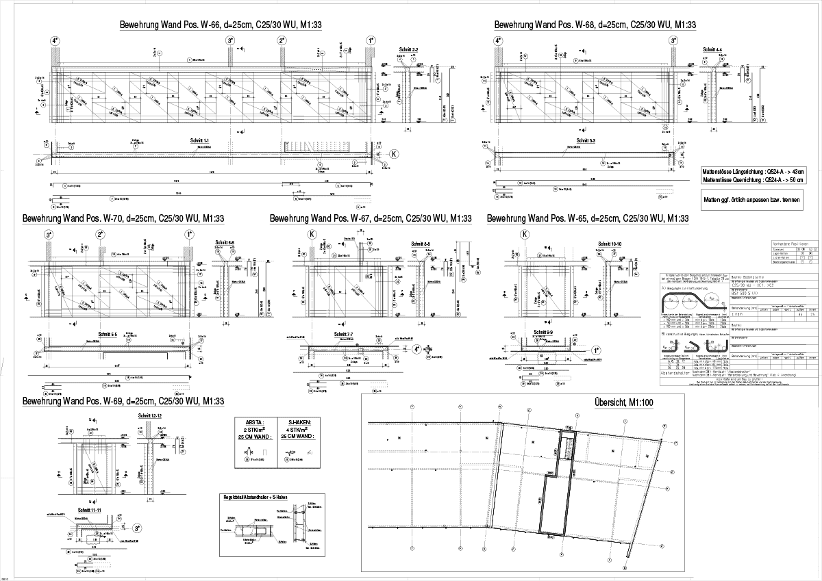
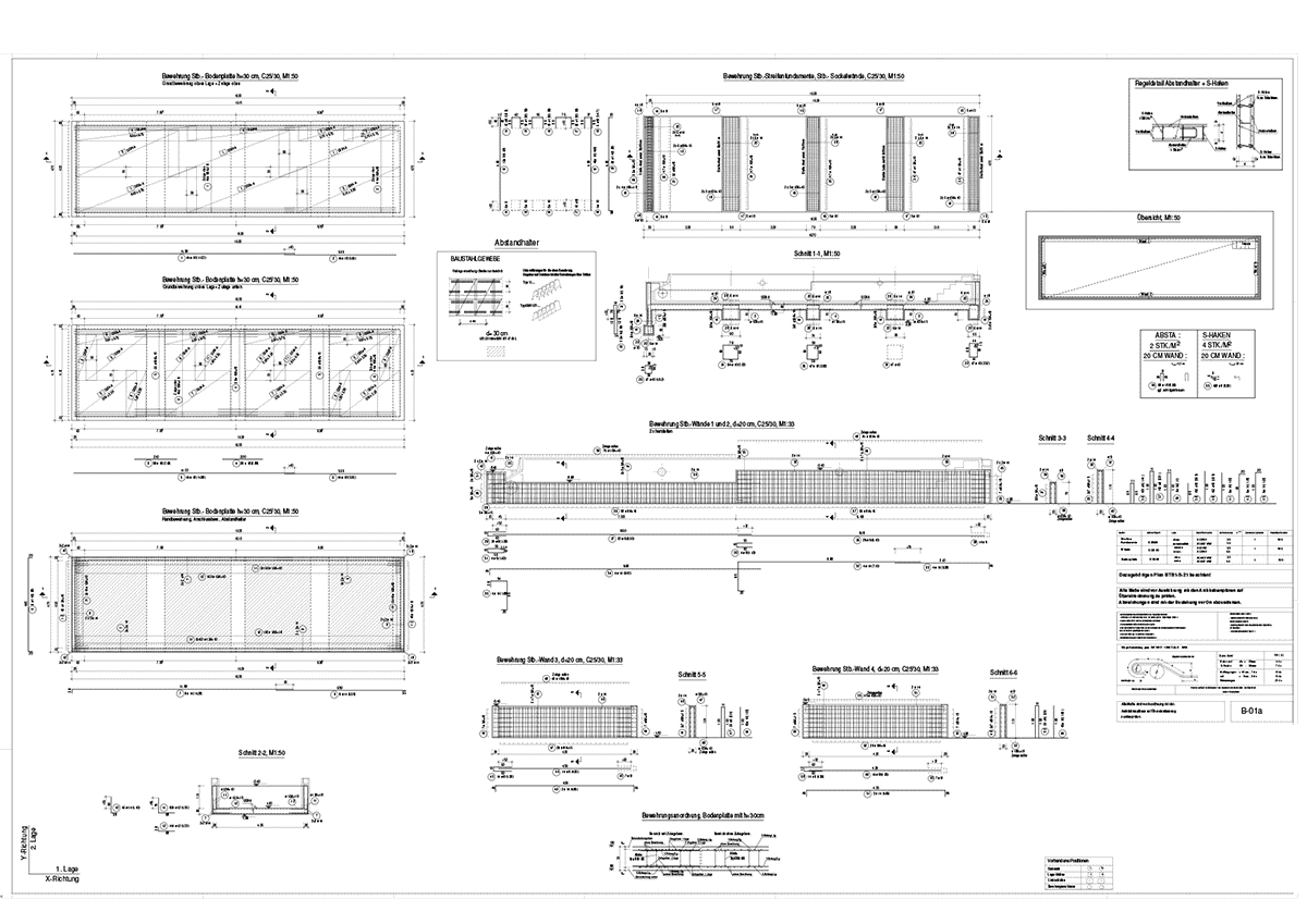
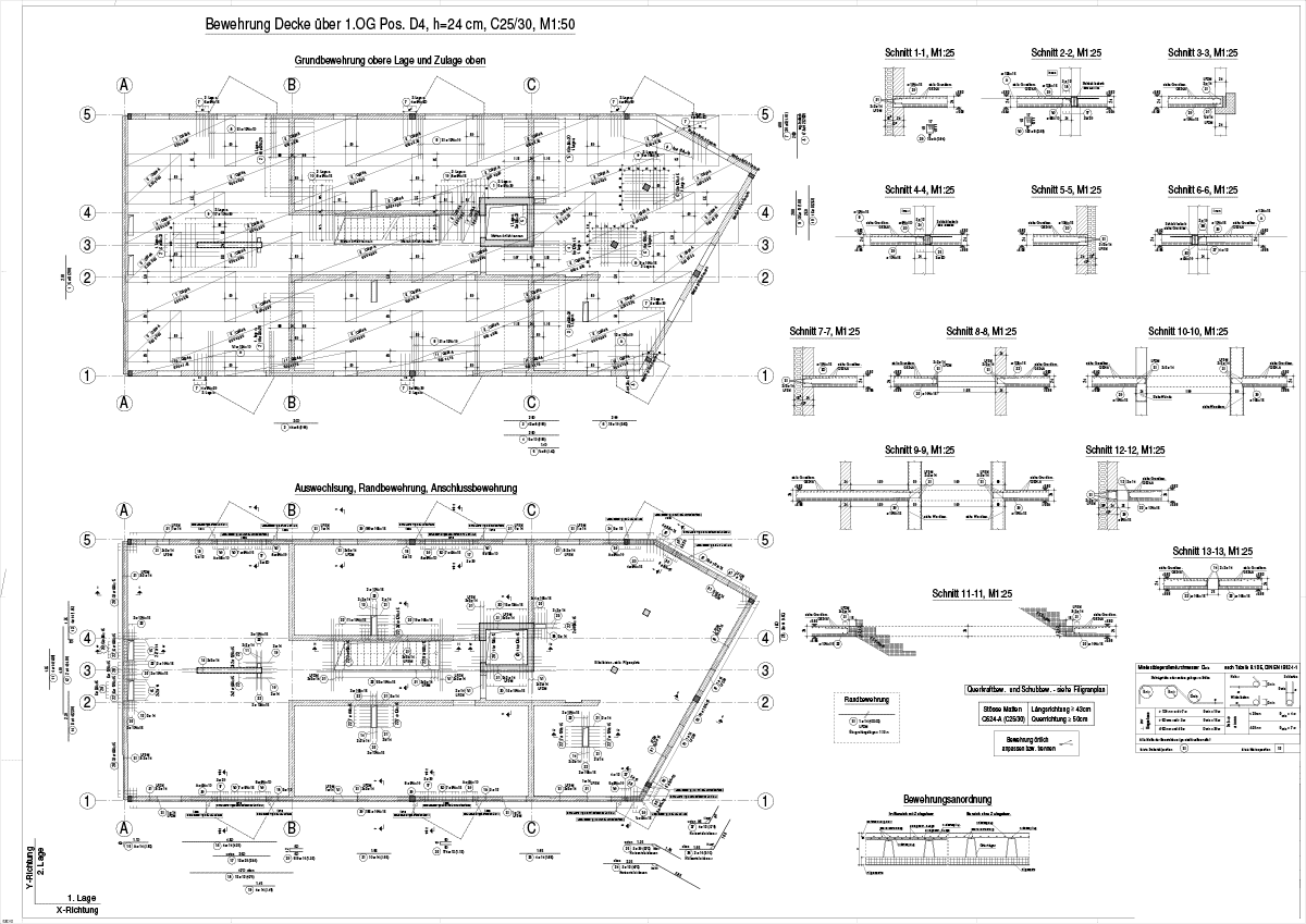
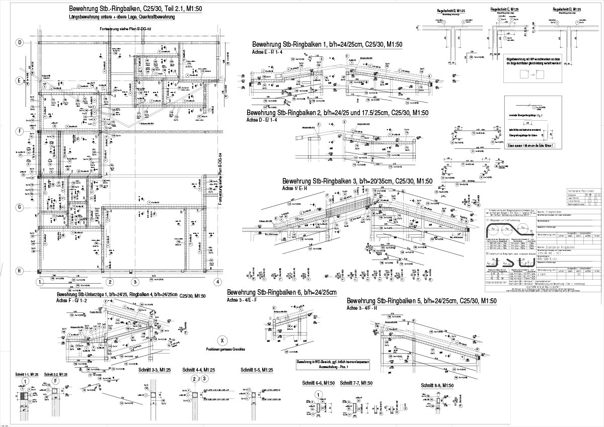
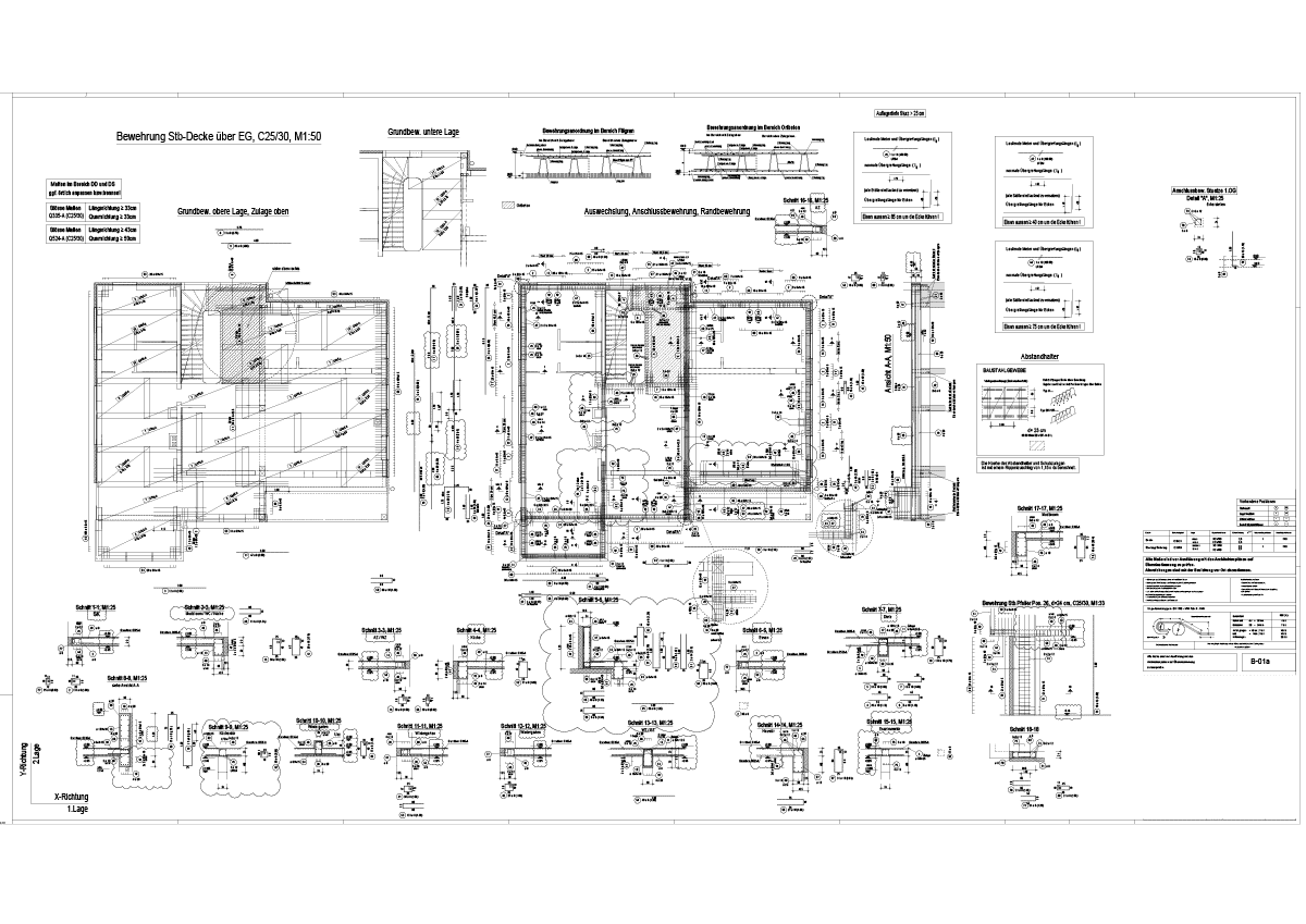
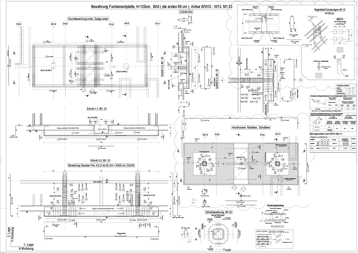
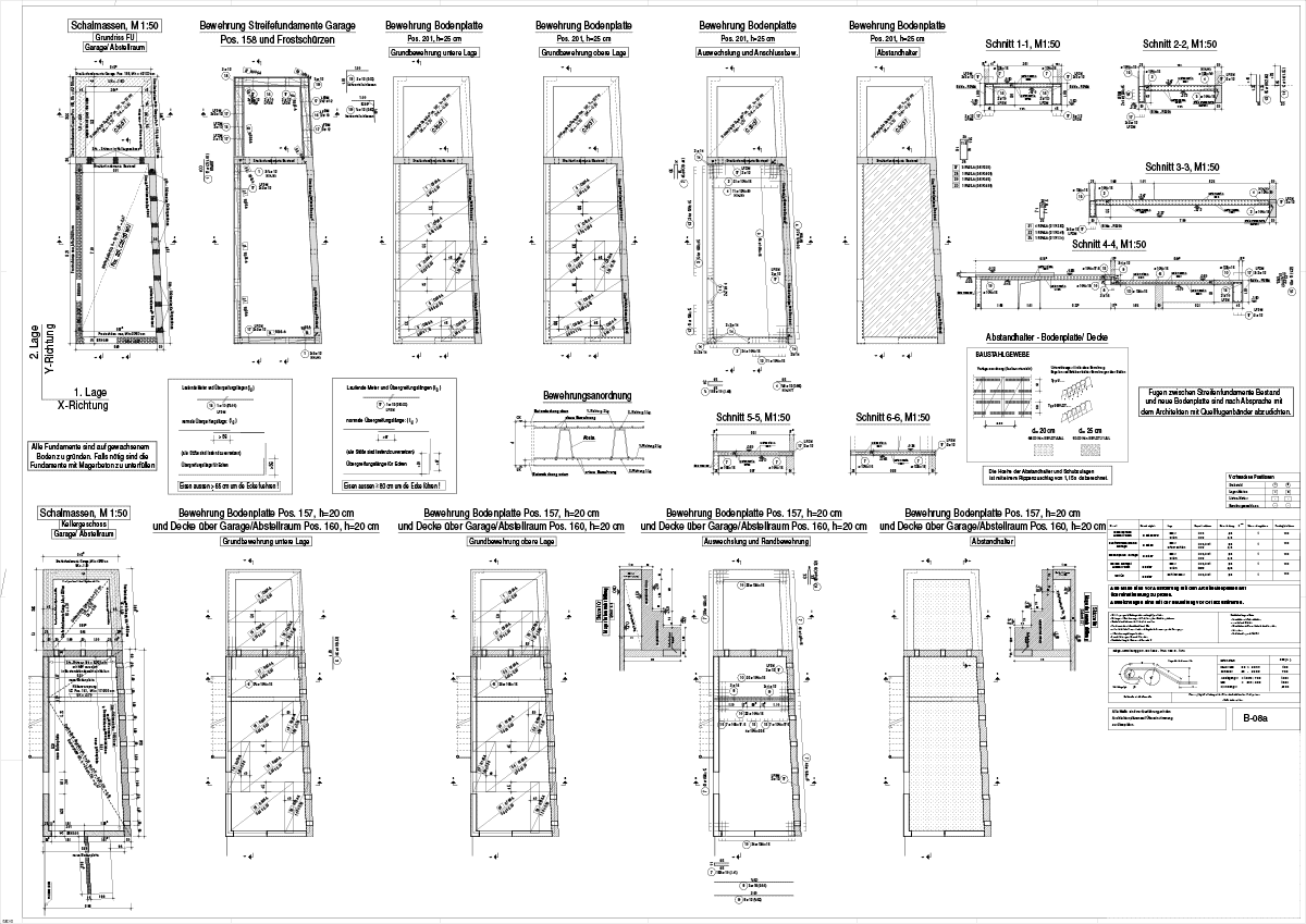
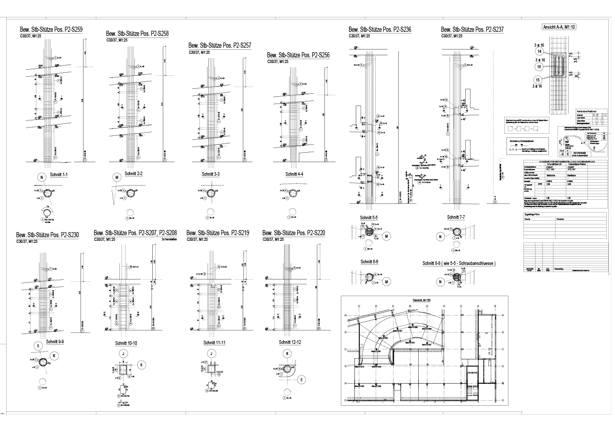
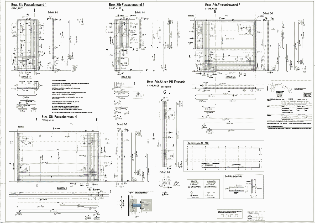
Es gibt kein Element aus bewehrtem Beton eines Bauwerks, das wir nicht bewehrt haben.

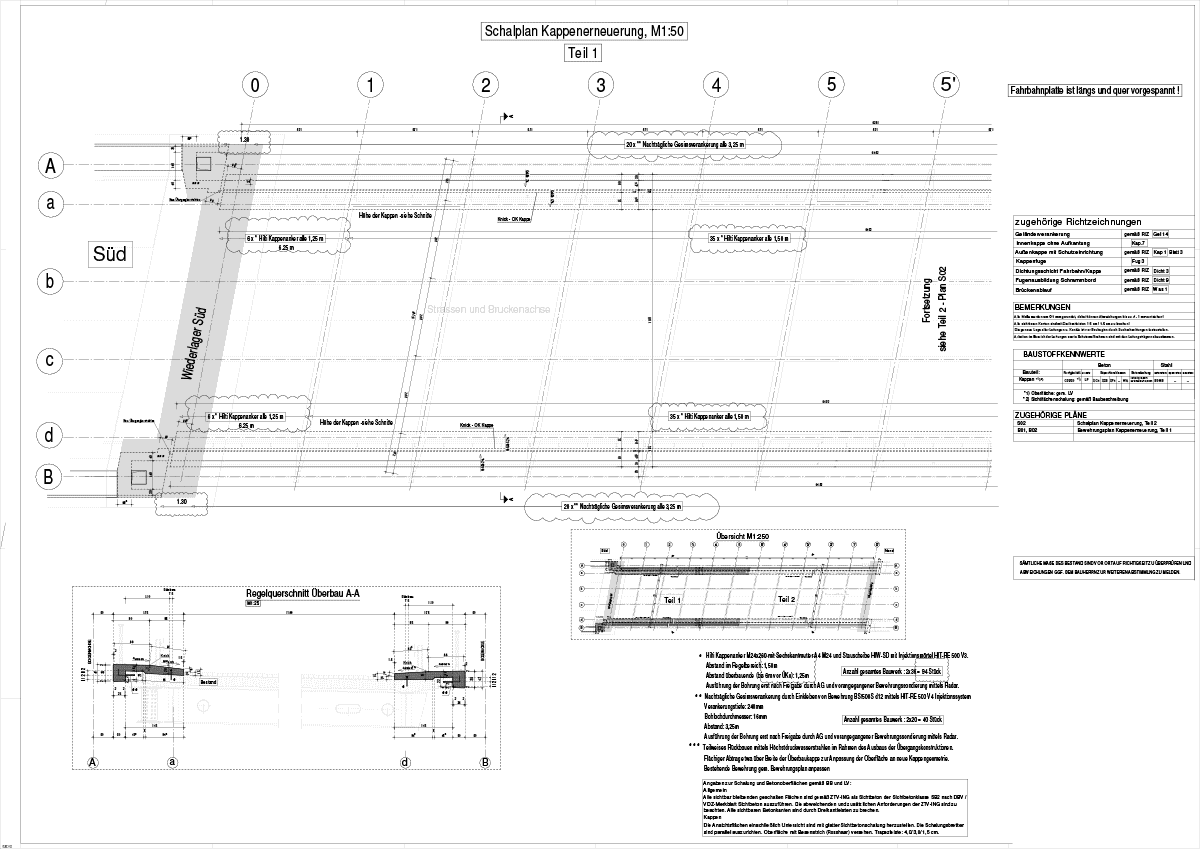
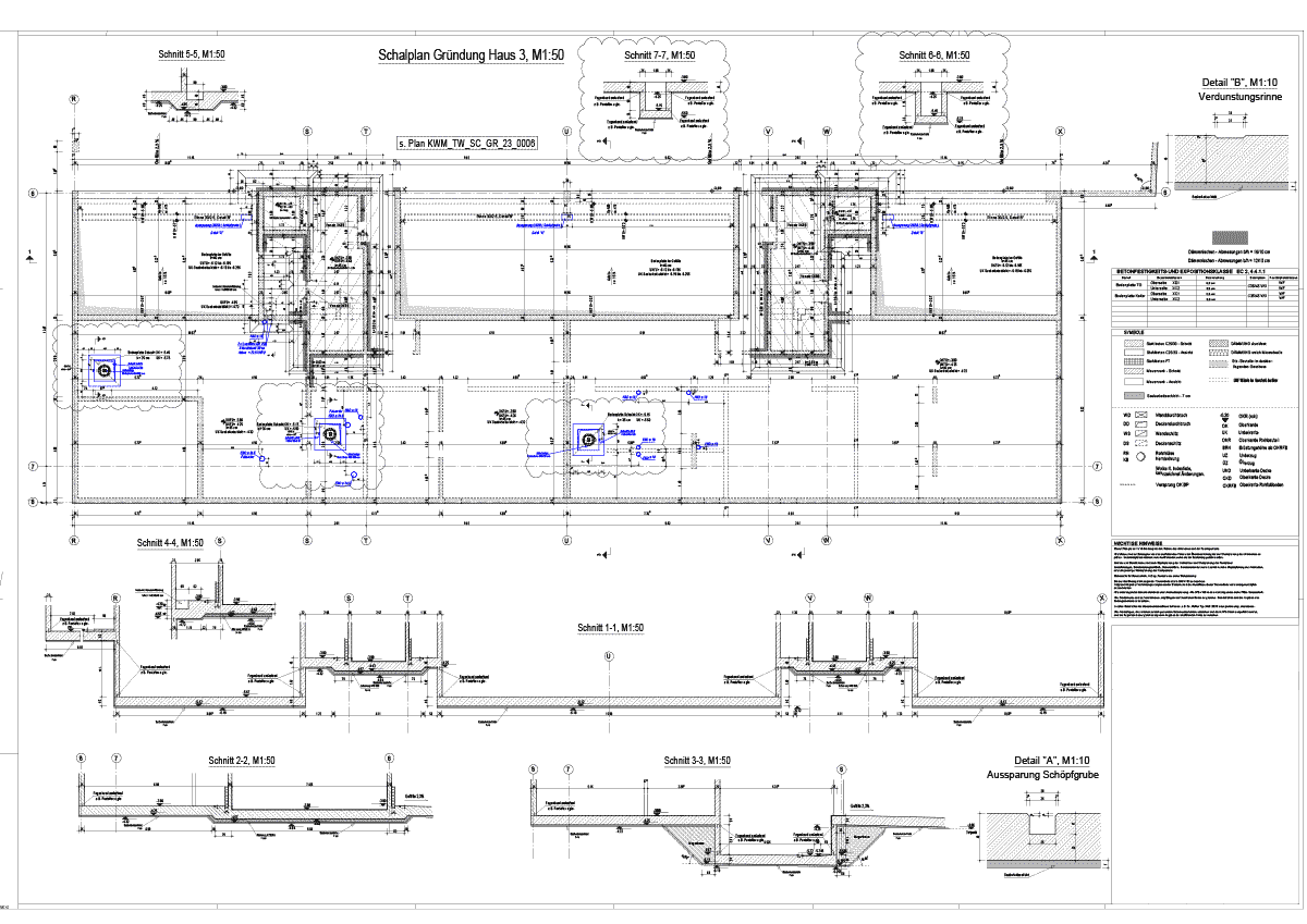
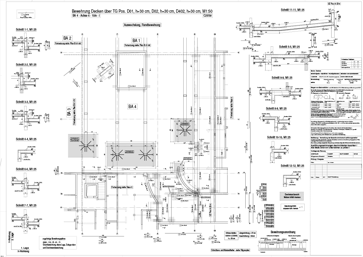
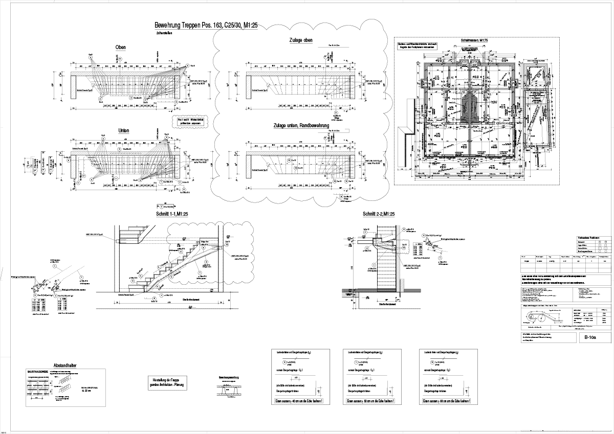
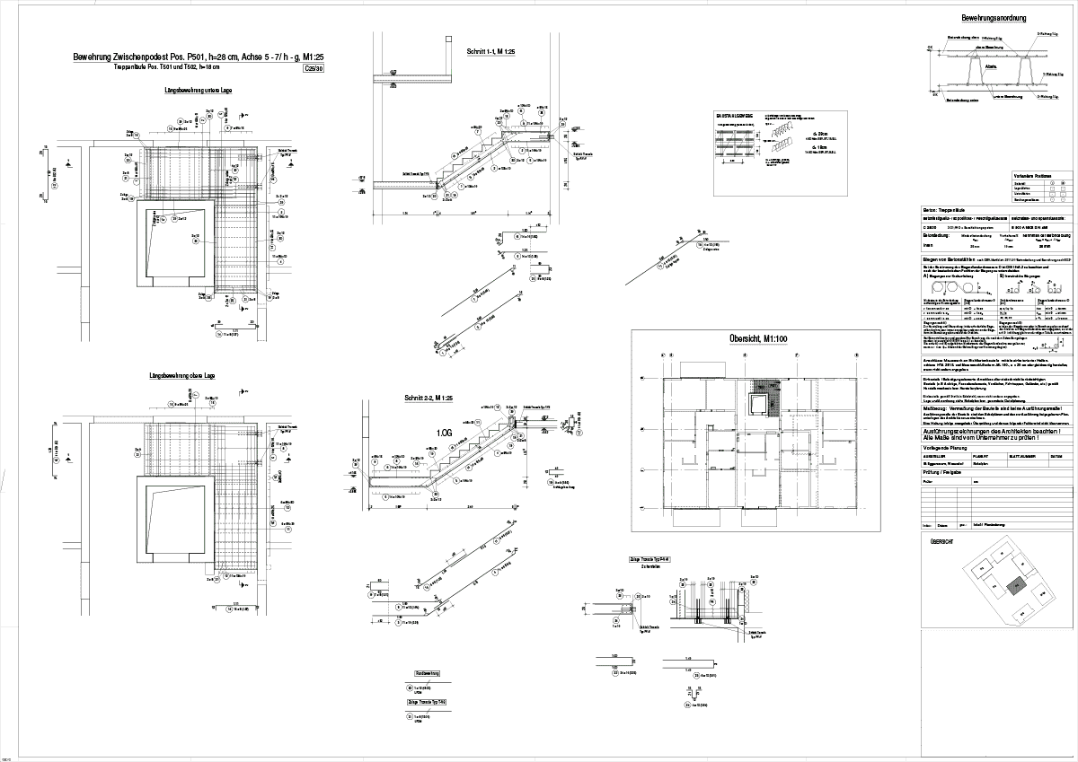
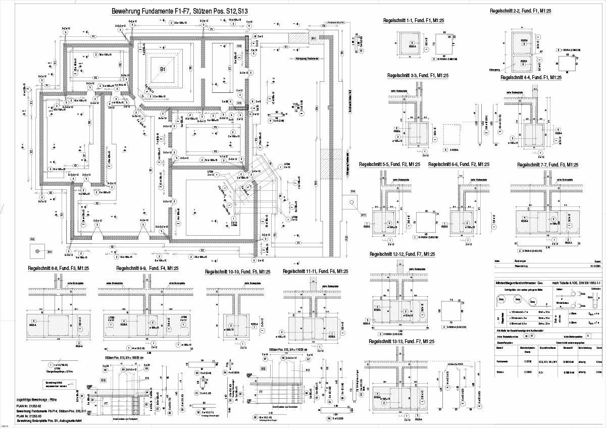
Bodenplatte, Streifenfundamente, Einzelfundamente, Wände, Stützen, Balken, Treppen, Balkone, Konsole, Attika, Wiederlager, Kappen, Stützwände, Kranfundamente, Additivdecken, Rampen, Spannbetondecken usw.
Wenn Sie möchten, können wir Ihnen auf Anfrage verschiedene Planmodelle von verschiedenen Projekten zusenden. Die Pläne sind zu zahlreich, um sie alle auf der Website anzeigen zu können. Alle auf der Website präsentierten Pläne stammen von den Projekten, an denen wir gearbeitet haben.

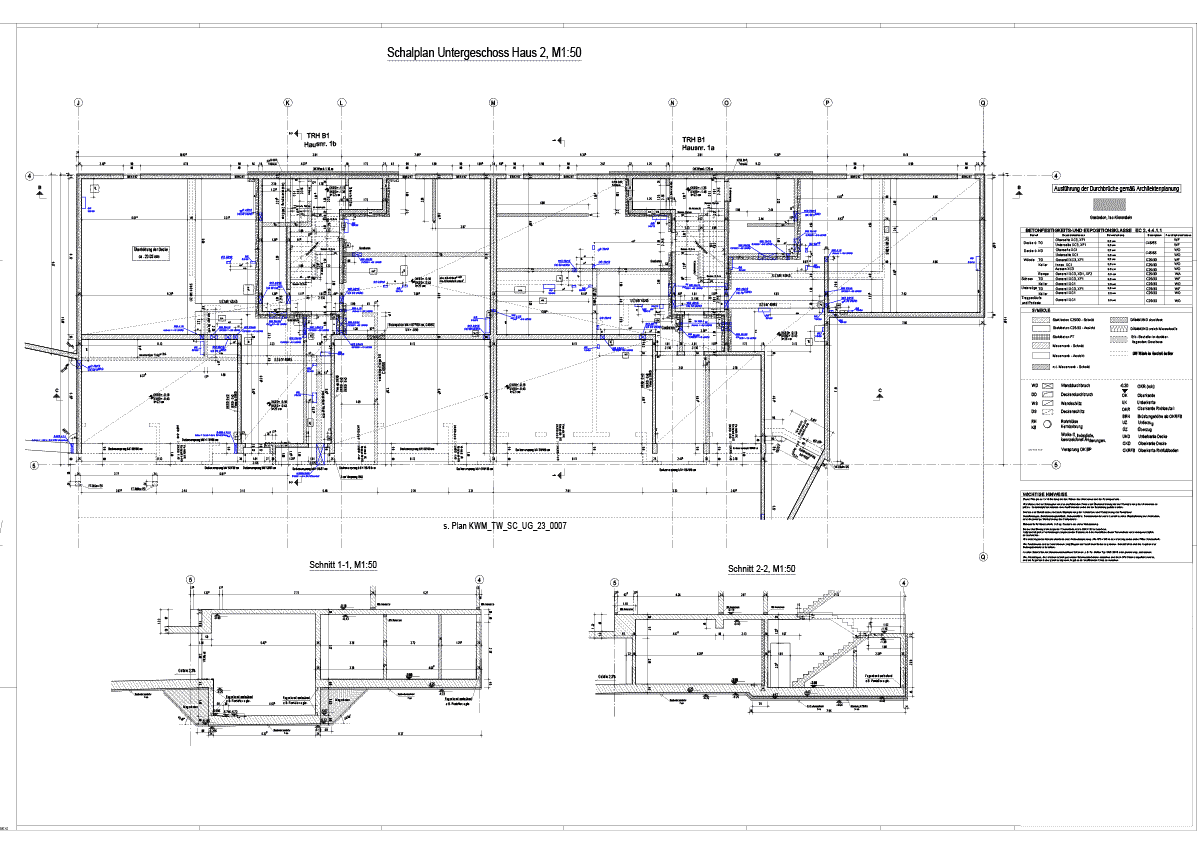
Schalplanung

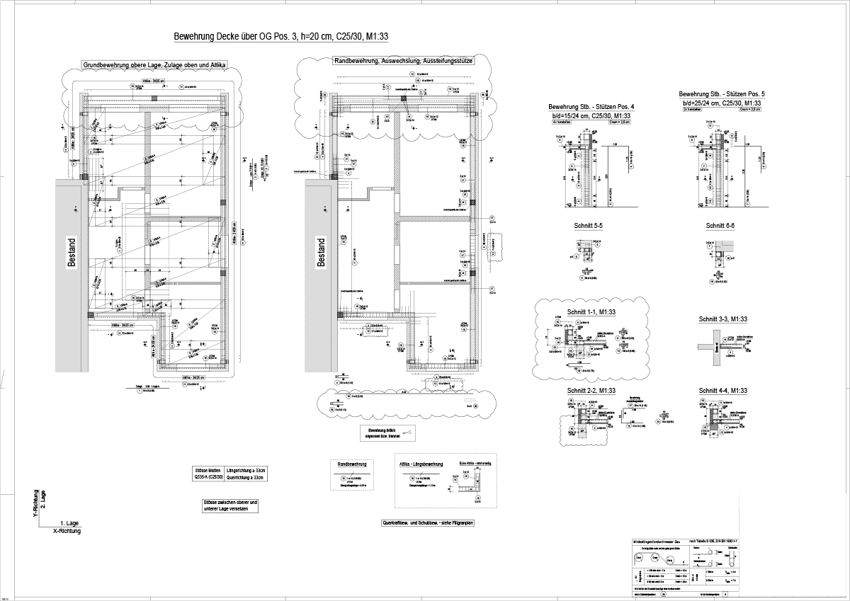
Bewehrungsplanung

Referenzen
Modernität und Anpassungsfähigkeit

In den letzten 10 Jahren habe ich mehr als 300 Bauprojekte im Hinblick auf Bewehrungs- und/oder Schalungspläne verwaltet, die verschiedene Funktionalitäten aufweisen, darunter Wohngebäude unterschiedlicher Größenordnungen: für eine einzelne Familie, für mehrere Familien, Wohnanlagen, Sanierungen bestehender Wohnungen, Bürogebäude, Sporthallen, Kindergärten, industrielle Bauten, öffentliche Bauten, Brücken, Stützwände, Tunnel usw.

 Die Liste ist zu kurz, um die Vielzahl der Projekte aufzuzählen, an denen ich gearbeitet habe, aber hier sind einige davon.

  1. Neubau eines Mehrfamilienhaus mit KFZ-Stellplätzen – Meckenheim
  2. Anbau an vorh. Wohnhaus – Künzell
  3. Neubau von drei Mehrfamilienhäusern – Dörnigheim
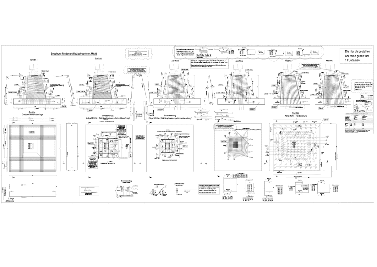
  4. Fundamente Holzfachwerkturm – Sachsenburg
  5. Wohnprojekt Gescherweg – Häuser 1-5 und Tiefgarage – Münster
  6. Neubau von 2 Stadtvillen – Neuwied
  7. Neubau eines Mehrfamilienhauses – Zeilsheim
  8. Neubau eines Einfamilienwohnhauses – Großenlüder
  9. Umbau eines Einfamilienhauses mit Errichtung eines neuen Daches – Taunus
  10. Umbau Einfamilienwohnhaus zu Doppelhaus – Oberursel
  11. Neubau Mehrfamilienhaus – Berlin
  12. Neubau Rettungswache – Kelsterbach
  13. Neubau Rettungswache – Büttelborn
  14. Modernisierung Ulrichswerkstätte – Aichach
  15. Pool – Becken inkl. Bodenplatte – Gartenbad
  16. Neubau Parkhaus – Goldbach
  17. Neubau Duisburger Freiheit MK04 – Duisburg
  18. Neubau von 3 MFH mit 31 WE und einer TG – Rheinbach
  19. Neubau eines Mehrfamilienhauses mit 24 WE und TG – Köln
  20. Neubau von 3 MFH mit 42 WE und Tiefgarage – Kißlegg
  21. Fundament Heller MTU01 Halle 16 – Friedrichshafen
  22. Neubau Büro- und Geschäftsgebäude – Köln
  23. Neubau einer Kindertagesstätte – Rotenburg
  24. Errichtung einer 7-Gruppingen Kindertagsstätte – Niddatal
  25. Neubau Hallenbad – Herzogenrath
  1. Dammabfangung Brücke Ilbeckweg – Winkelstützmauer – Ratingen
  2. Sanierung der Drewer Brücke – Recklinghausen
  3. Erstatzneubau Brücke, Hilfsfundamente – Hengstey
  4. Brückensanierung – Bochum
  5. Ersatzneubau Zugangsbrücke – Gelsenkirchen
  6. Neubau einer WA mit 33 WE – Hamm
  7. Verwaltungsgebäude Transporeon – Ulm
  8. Neubau Werkstatt / Parkhaus Umbau Bestandsgebäude – Berlin
  9. Neubau Bauteil R – KFZ – Werkstatt inkl. Aus-und Fortbildung – München
  10. Neubau Bauteil S Ausbildungszentrum – München
  11. Neubau Haftgebäude in Modulbauweise JVA – Heimsheim
  12. Neubau Unternehmenszentrale – Bad Homburg
  13. Erweiterung Seniorenhaus – Grafing
  14. Neubau eines Mehrfamilienwohnhauses – Alzenau
  15. Neubau Mehrfamilienhaus – Kriftel
  16. Neubau Wohnungshaus – Hünfeld
  17. Wohnen am Damiansweg, KITA – Köln
  18. Neubau von 6 MFH auf einer gemeinsamen Tiefgarage – Monheim am Rhein
  19. Neubau Mehrfamilienhaus – Hagen
  20. Errichtung eines Büroensemble mit Parkhaus und Aussenanlagen – Minden
  21. Ersatzneubau und Erweiterung mit 2-fach Sporthalle – Schwabach
  22. Neubau eines Wohnhauses – Duisburg-Meiderich
  23. Grundschule – Neunkirchen am Brand
  24. Herne Baukau Kaiserquartier – Herne
  25. Unterfangung von 2 Maschinen “GROB” – Friedrichshafen
Wir bewehren alles
PREIS
Günstig und Schnell

Je nach Komplexität des Projekts kann der Preis verhandelt werden, aber ich garantiere Ihnen einen viel besseren Preis im Vergleich zu dem, was auf dem Markt existiert.

Zusätzlich dazu, wenn Sie mit den ersten Plänen nicht zufrieden sind, müssen Sie sie nicht bezahlen.

Qualität zum besten Preis
RADBAUSTRUKT SM

KONTAKT